The Tea House
I planned to have 2 garden sheds in the original landscape design: the 9' x 12' garden shed in the Northeast corner of the yard for garden tools, and a smaller 8' x 8' shed in the Northwest corner that we'd use to store pond supplies. After the potting shed was finished and I began planning the other shed, I designed the outside to look like a chashitsu, or Japanese style tea house but the interior was just going to remain unfinished with some shelves, like the potting shed. It wasn't until I actually began construction on the building that we decided to go ahead and finish the structure as functional tea house, rather than just another fancy tool shed. Another factor in the decision to finish the interior of the structure was that by this time (Summer 2005) we had decided that my full time work would be the home renovation project, so I also thought it would be a good idea to create a little retreat for the lovely bride to come home to after her day at the office, rather than have to face the mess of the ongoing home renovations every night.
The site for the tea house had been prepared at the same time as the other shed's site, with the same 6 inch deep bed of gravel well compacted with the Bobcat. Unlike the potting shed however, I had no intention of just "wingin' it" with regard to the planning and framing of the tea house. Although our yard is small, the prospect of humping lumber and tools up and down the hill hundreds of times over the course of the project did not sound very appealing. Instead, I took the time to plan out all of the framing ahead of time and prepare detailed cut lists. The idea was that I'd pre-cut all of the lumber down at ground level (we have a 12' x 20' temporary storage building that I've been using as a shop throughout the renovation project), then carry all the pieces up to the site and assemble them like a big kit. I got a little carried away with the plans (20 pages for a tiny little shed!), but creating the plans was a good exercise for later projects on the main house, and was extremely helpful in building the really goofy teahouse roof. By the time I started tea house construction, I'd also taken heed of the lessons learned during the potting shed construction, and had acquired an air compressor, a few nail guns, and a nice Milwaukee sliding compound power miter saw.
Building the Teahouse
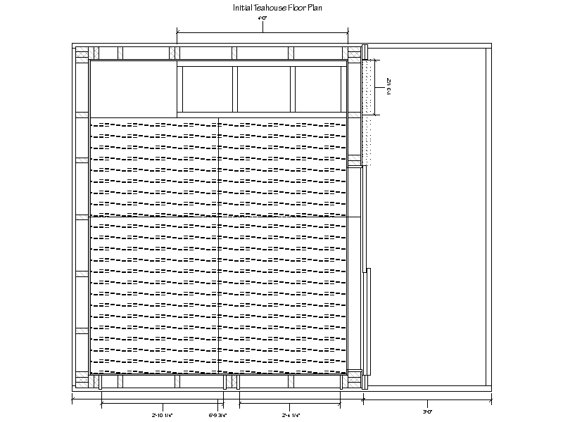
The first part of the teahouse planning was to layout the foundation and size for the building with a basic floor plan and elevations.
To try and get the right look, I did a good deal of poking around the 'net for ideas and information about the key elements of a tea house
(and found a lot of really awful looking tool sheds that folks called their tea house... I don't get that, but I digress).
I ended up just placing doors and windows in what I considered the most sensible locations for the building with regard to the site
and its relationship to the rest of the yard. I had already begun construction as I continued to learn about the "proper" design and
style of the chashitsu, and seemed to have stumbled upon the "correct" design of the structure without really knowing what
I had been doing when I started. I guess common sense worked 400 years ago for
Sen no Rikyu
just like it did for me.
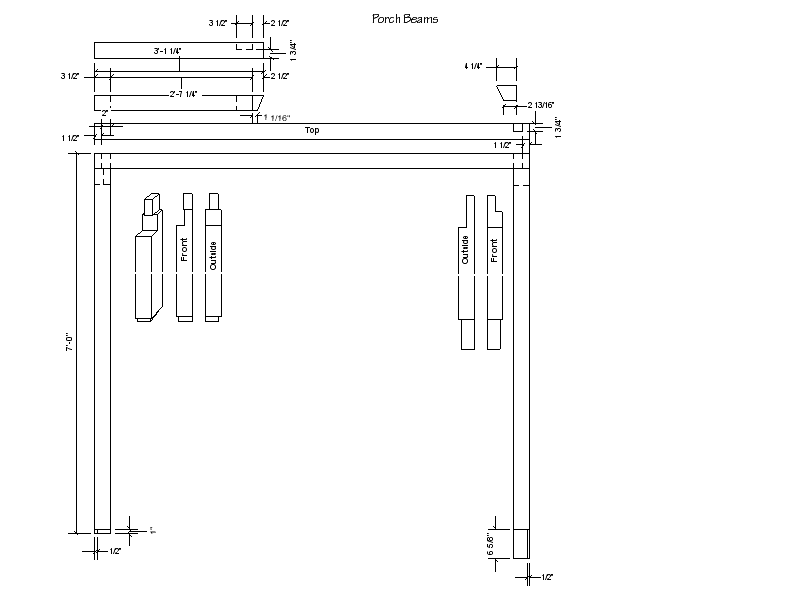
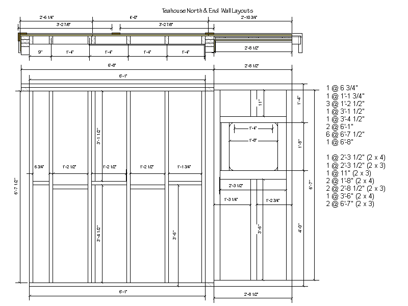
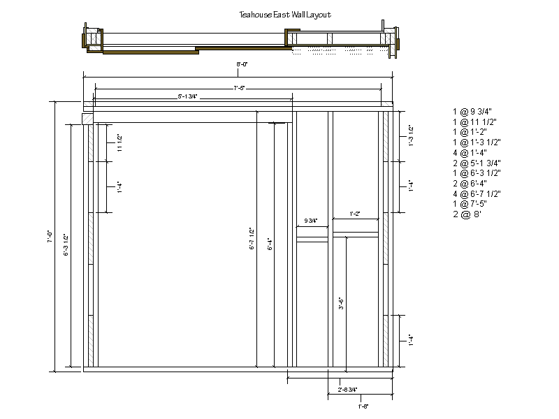
Like the potting shed, I started the teahouse with 16 concrete Dek-Blocks piers on the gravel base, then built the floor from 2x6 pressure treated lumber on 16" centers with joist hangers and decked it with 3/4" exterior grade plywood. Originally the teahouse was going to be 8' x 8', but I ended up changing the dimensions a bit to fit the small site. I wanted to have a small porch on the front of the teahouse like I'd put on the shed, so in order to accommodate a 3' wide porch, the building shrank to 6' x 8' (9' x 8' with the porch). As I was doing the framing, I learned that the 6' x 8' dimensions were ideal for an Ichijo-daime two-mat tea room - a standard tatami mat is roughly 3' x 6'- so at 6' x 8' I could use two mats and still have room inside for the tokonoma (scroll alcove) and mizuyadana (storage area) along one wall. I altered the floor framing to create an area for a ro (hearth or fire pit) as well, as I figured out I was building an actual two-mat teahouse, rather than a pond supplies storage shed.
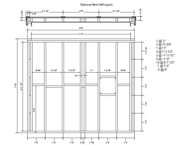
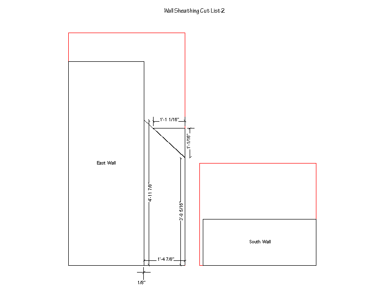
Framing the building moved along very quickly once I got over all the messing about with plans, and the idea of cutting in one location and building in another was working out well. I was able to do all the cutting at the saw station, then haul everything up the hill and frame each section without a bunch of trips back and forth. I had power up at the site already, since I put the electrical lines in a few years earlier when we had the septic system installed, so I was able to power up the compressor and bang the walls together in no time with a framing nailer. I was amazed at the difference in speed and ease the nail guns made throughout the teahouse building project. Wall sheathing went on next, then the roof was framed and sheathed. For roofing we used the same style shingles as the potting shed, but this time they went down in a matter of hours rather than days, thanks to the coil roofing nailer.
Finishing the Teahouse
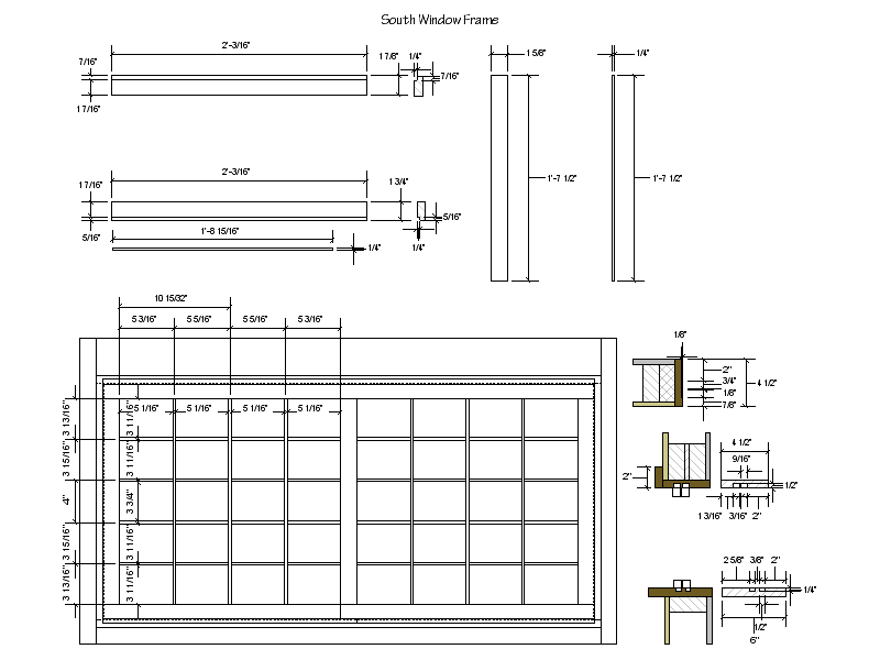
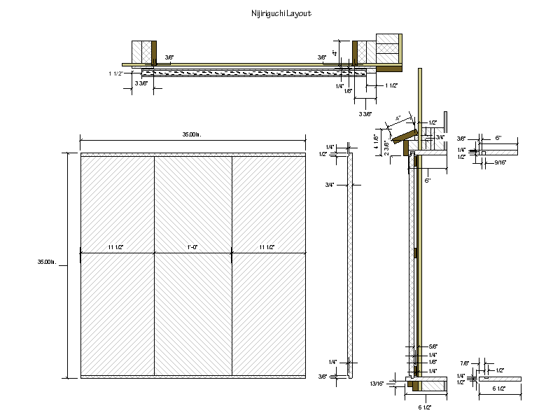
The exterior was finished in the same manner as the potting shed, with "Tobacco" stained rough-sawn trim. I used a couple canes of bamboo from our little stand of bamboo to create the vertical bars on the Southern window, then turned my attention to the crawl door or nijirigushi. Tradition holds that this door should be made from three pieces of wood, and one of them should be a "used" board from the main house. Luckily, I had found a few scraps of 14" wide boards in the attic, so I was able to assemble a right proper little sliding door.
I also employed some of our bamboo to create the loose "screens" that fill the West and North windows for the illusion of a traditional window style where wall openings are simply not filled with plaster mud, and the exposed bamboo "lathe" creates the window screen. I intend to make a pair of yukima shoji for the main doors, which incorporate a sliding section within the shoji that holds a pane of glass - that will be nice to view the garden when seated on the floor inside the tea house. Unfortunately I haven't made the commitment of time necessary to assemble those shoji yet.
The interior received a full finish with gypsum wall board, a Cedar plank ceiling, and goza mats on the floor (I'll install tatami once I've done the doors and I can close the building to protect them from rain and snow). As we did with the exterior of the shed, we used the interior of the teahouse to experiment a bit with wall and trim colors for the main house. We decided on Valspar's "Prairie Dance", 3006-10A wall color, and Minwax's Water-Based "American Walnut" Wood Stain with their water-based semi-gloss Polycrylic Protective Finish topcoat for the trim.
Since we'd gone to the trouble to build an actual chashitsu, the next step for the tea house was to use it for a traditional
Japanese tea ceremony. Of course I had no idea what that would entail, and soon found out it's no small matter. We've collected a number
of books on the subject (see below), and also started learning about the incense ceremony as well. I could dedicate a lifetime to learning about
the tea ceremony and all the tea ware and utensils that are required, but I need to focus on finishing the house first, obviously.
I do occasionally check E-Bay and other 'net resources for tea ware, but finding this stuff is a slow process and I've only managed to
obtain a fraction of the items required so far. Most of what I've collected has been well used, and will require plenty of tender loving care
to bring up to useable condition (especially the kettles). While we have yet to actually attempt a tea ceremony and taste a cup of thick,
foamy powdered tea, we often enjoy brewing leafy green tea which we acquire directly from the growers through
Hibiki-an
. Hibiki-an also sells a wonderful selection
of basic tea ware (with free, surprisingly fast shipping), and their site contains a wealth of information regarding green tea.
I had no idea this seemingly simple little building would lead us on the path of so many activities we both enjoy immensely. The original goal of creating a retreat where the lovely bride could escape the often depressing and always messy conditions of our home renovation project has been a great success. While we have yet to attempt preparing thick tea with the ro, we still enjoy sencha in the tea house on a regular basis. It's also wonderful place to read a book or simply sit and clear one's mind while the waterfall gurgles in the distance.
Tea Ceremony Reference Materials
We've enjoyed the following titles to learn more about the tea house, incense ceremony and tea ceremony:
by Seno Tanaka
Publisher: Kodansha International
Pub. Date: May, 2000
ISBN-13: 978-4770025074
Chado: The Japanese Way of Tea
by Sioshitsu Sen
Publisher: Tankosha
Pub. Date: May, 1979
ISBN-13: 978-0834815186
by Soshitsu Sen, Alfred Birnbaum
Publisher: Tankosha
Pub. Date: June, 1989
ISBN-13: 978-0834802124
Cha-No-Yu: The Japanese Tea Ceremony
by A. L. Sadler
Publisher: Tuttle Publishing
Pub. Date: July, 1977
ISBN-13: 978-0804812245
by David Pybus
Publisher: Tuttle
Pub. Date: May, 2001
ISBN-13: 978-0804832861
The Book of Incense: Enjoying the Traditional Art of Japanese Scents
by Kiyoko Morita
Publisher: Kodansha International
Pub. Date: June, 1999
ISBN-13: 978-4770023896
by Sasaki Sanmi, Shaun McCabe, Iwasaki Satoko, Sen Soshitsu
Publisher: Tuttle Publishing
Pub. Date: September, 2005
ISBN-13: 978-0804837163
The Way of Tea: The Sublime Art of Oriental Tea Drinking
by Km Chuen Lam, Kai Sin Lam
Publisher: Barron's Educational Series
Pub. Date: February, 2002
ISBN-13: 978-0764119682
by Diana Saltoon
Publisher: Robert Briggs Associates
Pub. Date: May, 2004
ISBN-13: 978-0931191183
↑





